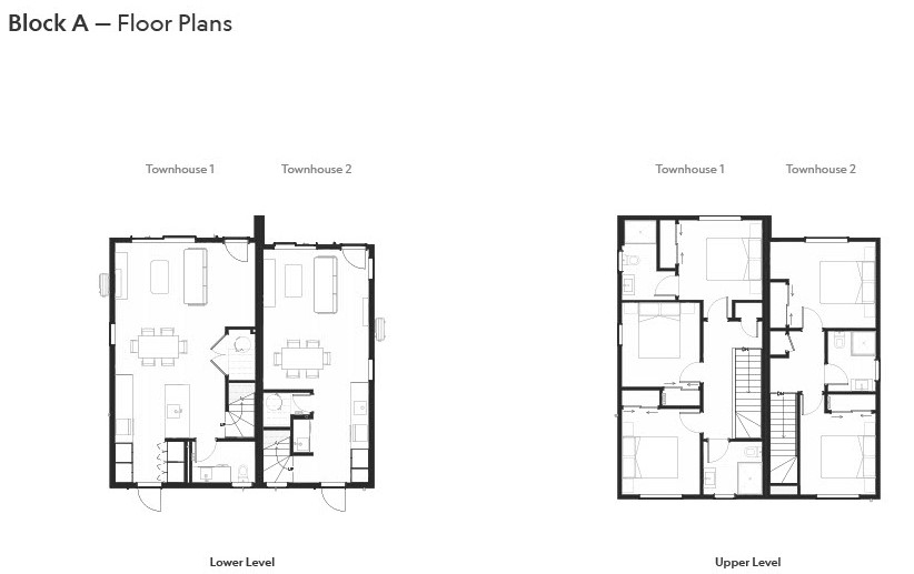
2 Bedrooms
1 Bathroom
1 Carpark
77 sqm Floor Area
78 sqm Land Area
You must enable JavaScript to submit this form