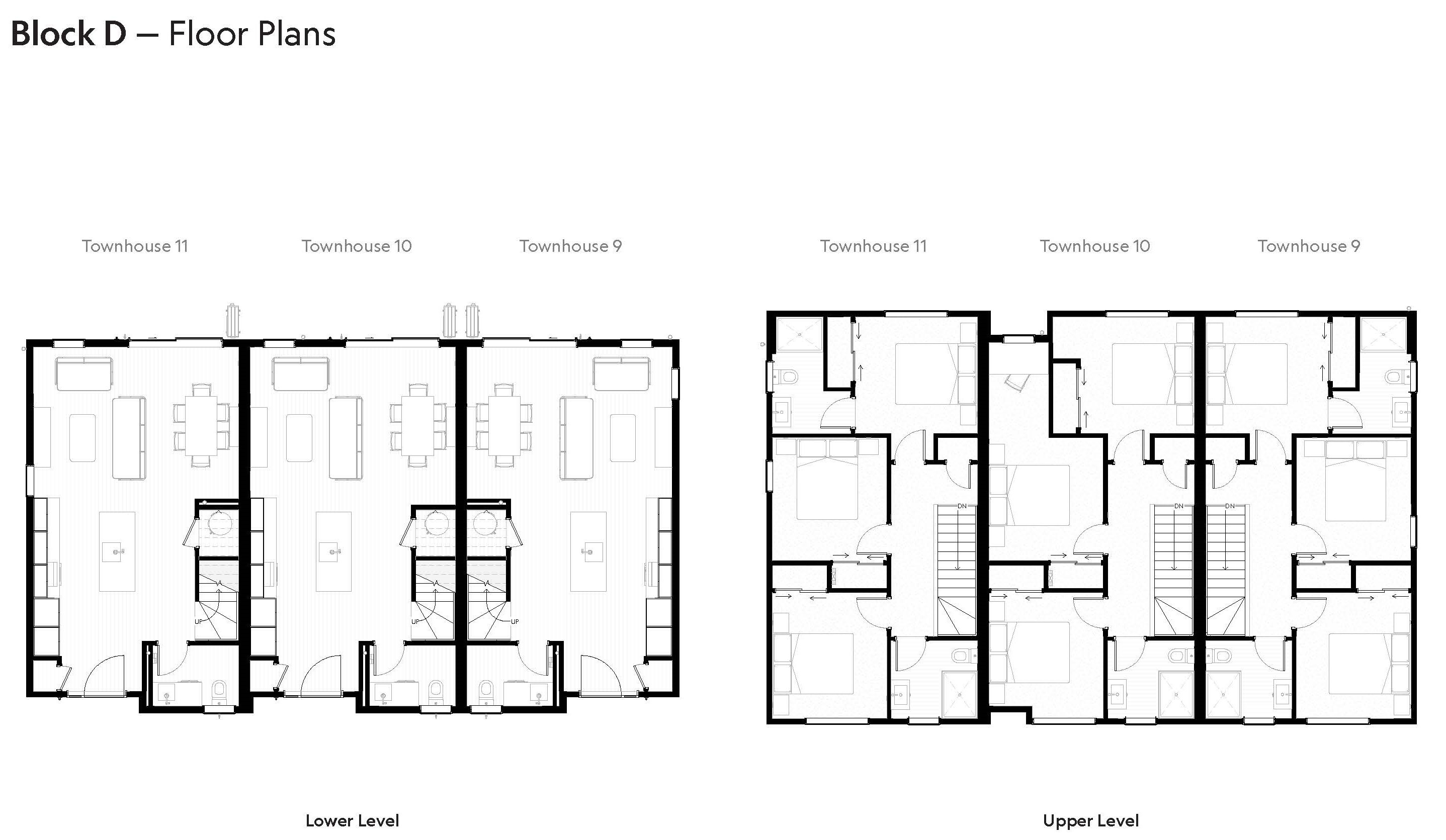
3 Bedrooms
2.5 Bathrooms
1 Carpark
102 sqm Floor Area
84 sqm Land Area
You must enable JavaScript to submit this form