At a glance
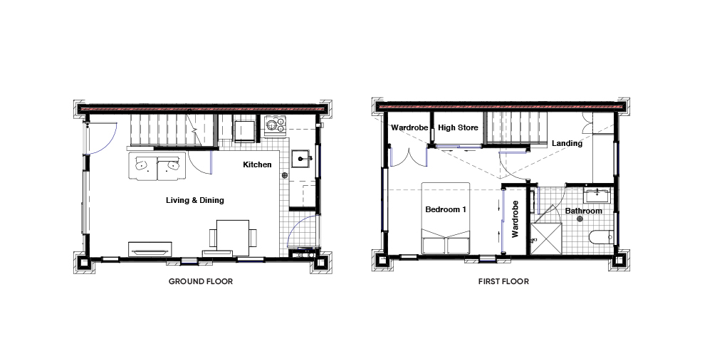
1 Bedroom, 1 Bathroom
On the Ground Floor, the kitchen, dining and living areas are open plan. There is a Washer/Dryer Combination conveniently located within the kitchen and a large storage space under the stairs (additional storage space also upstairs). Upstairs is one full size bedroom, which includes a large built-in wardrobe and a separate full-size bathroom. Outside is a low maintenance private courtyard, which includes a Clothesline, Storage/Bike Shed and power supply.
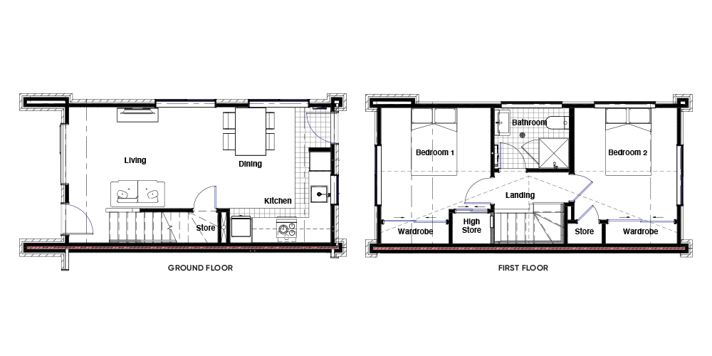
2 Bedrooms, 1 Bathroom
On the Ground Floor, the kitchen, dining and living areas are open plan. There is a Washer/Dryer Combination conveniently located within the kitchen and a large storage space under the stairs (additional storage space also upstairs). Upstairs is two full size bedrooms, which include a large built-in wardrobe and a separate full-size bathroom. Outside is a low maintenance private courtyard, which includes a Clothesline, Storage/Bike Shed and power supply.
