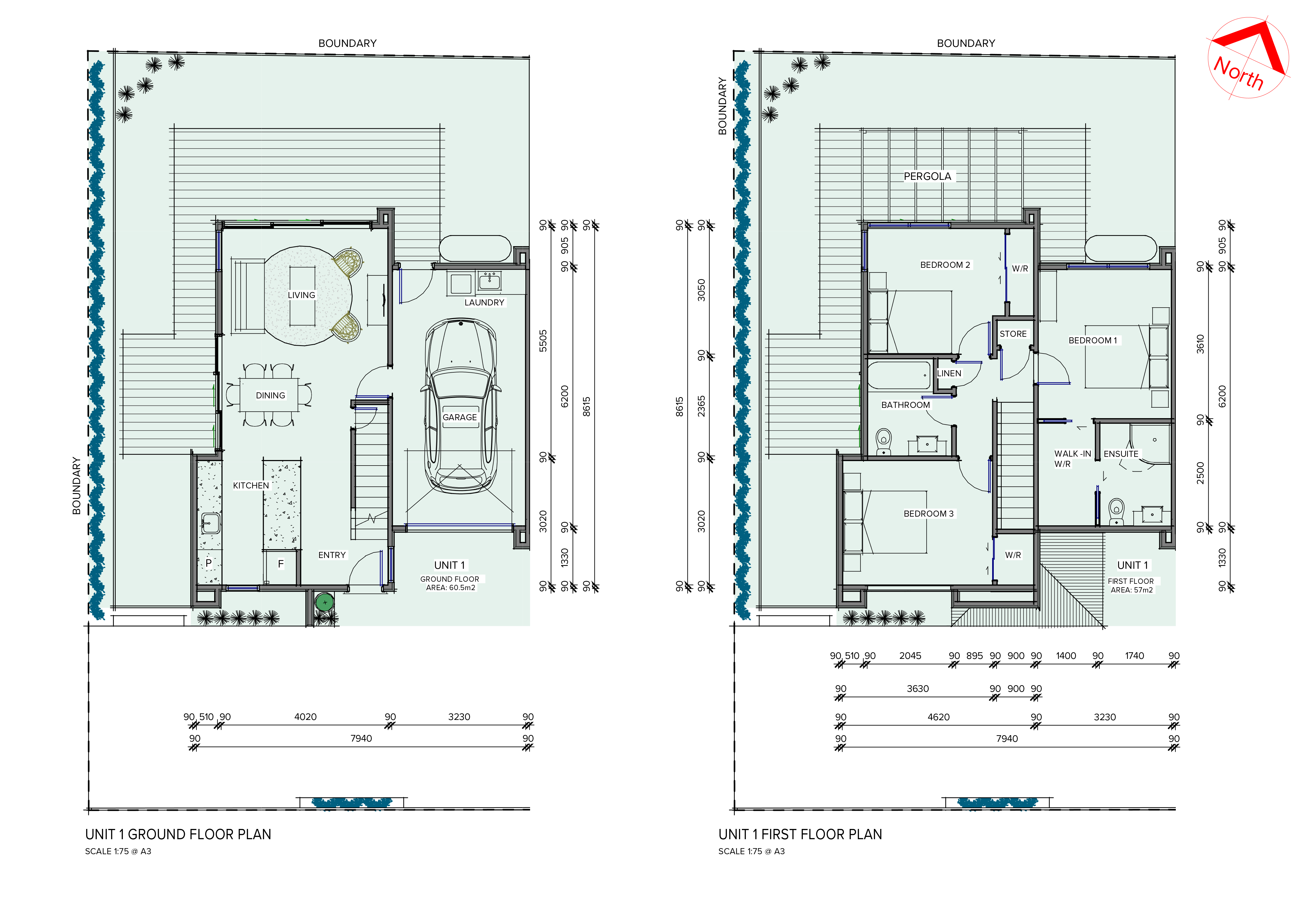
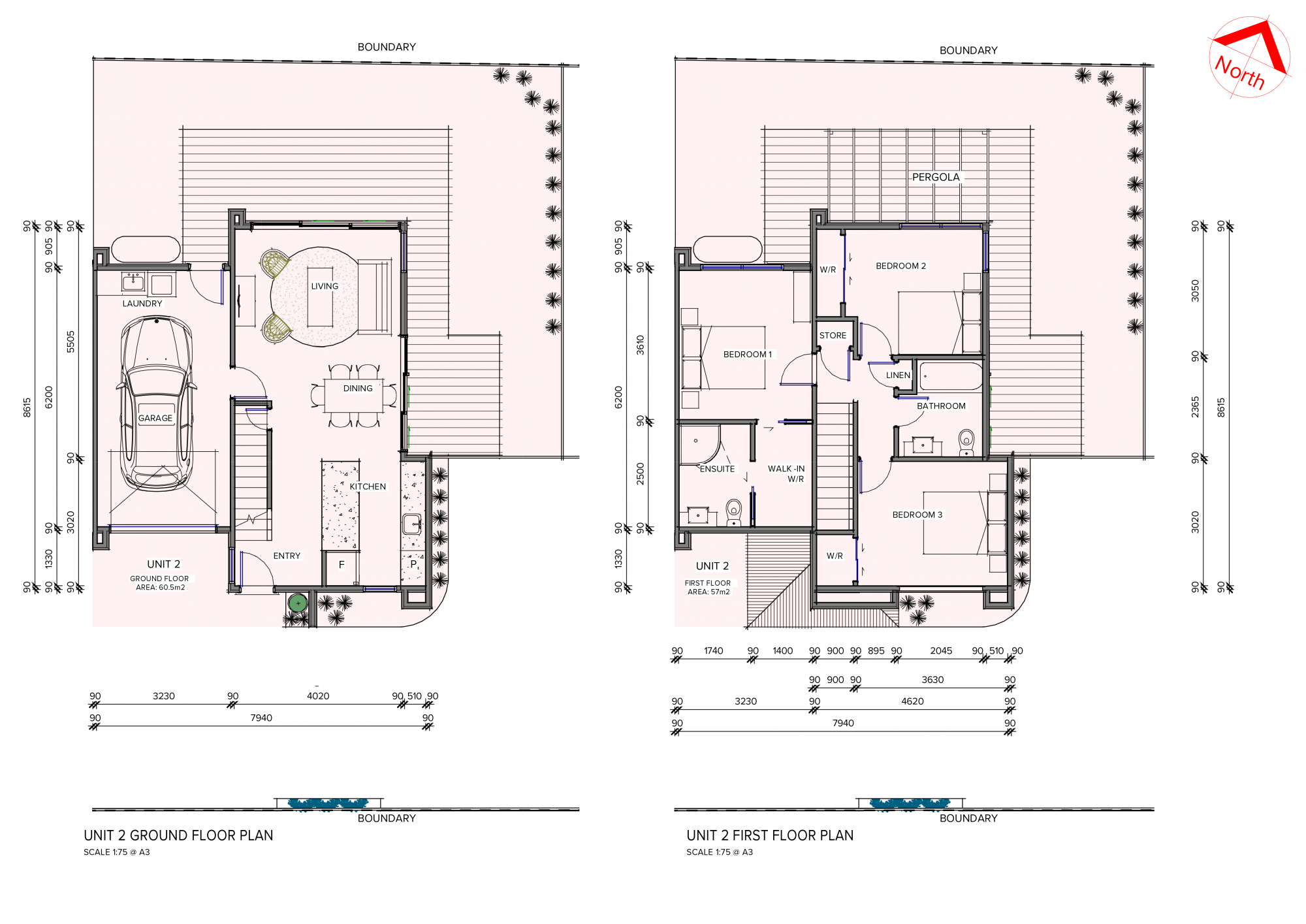
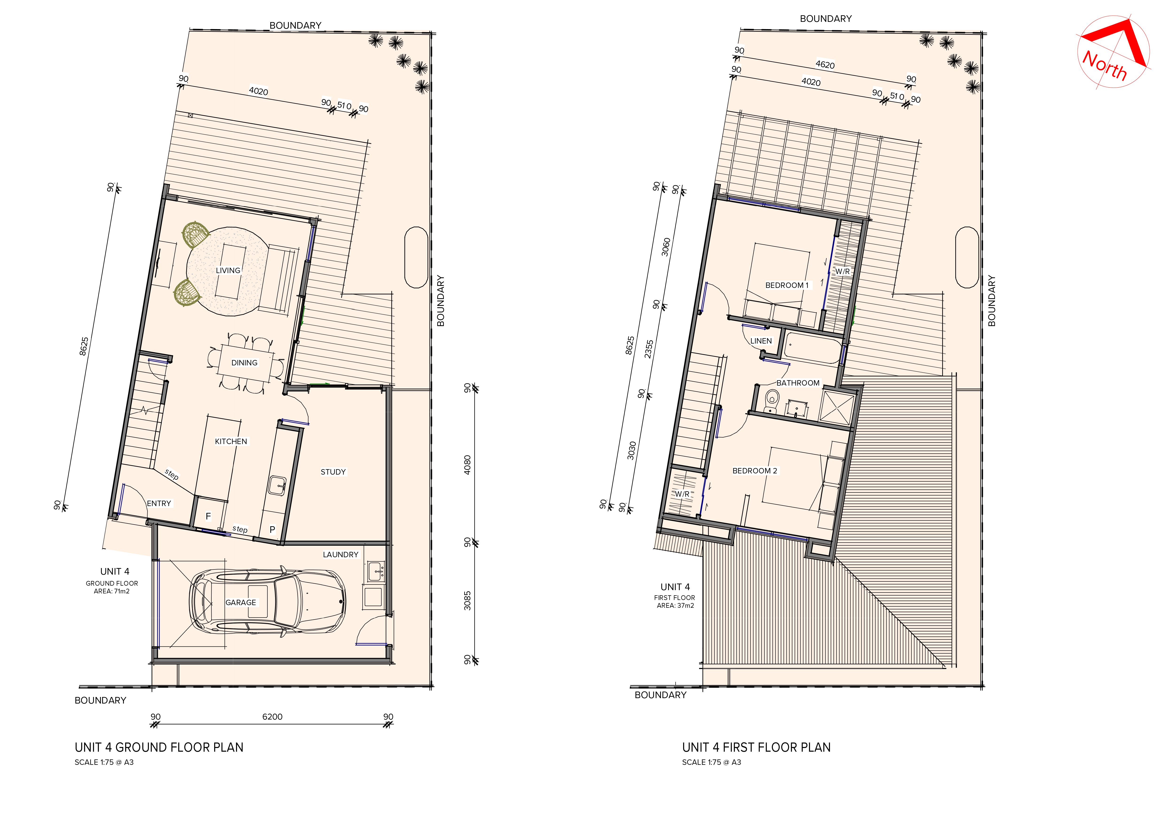
Plans
Setting the Standard for Sophisticated Living
The site layout, which has been carefully planned with consideration given to privacy and sun, accommodates a variety of two-bedroom home configurations.
The four units come with an internally accessed garage and great outdoor space.
