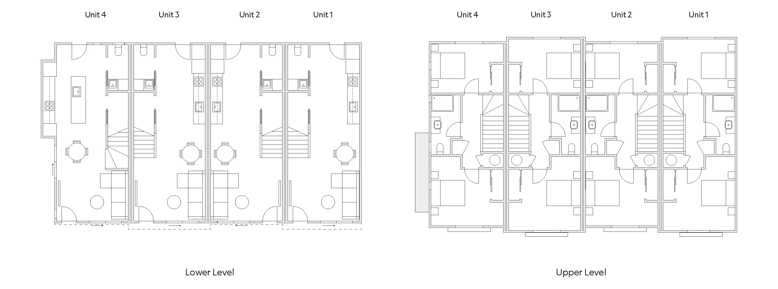
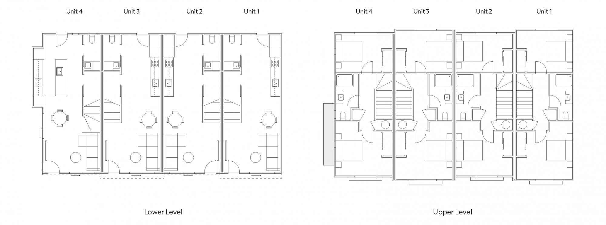
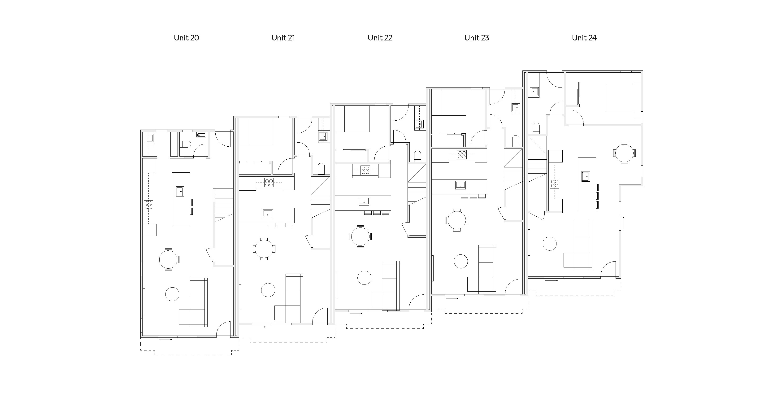
Homes
At a glance
A total of 24 townhouses
3 x 4-bedroom townhouses
2 x 3-bedroom townhouses
19 x 2-bedroom townhouses
• Quality finishes and appliances and stone benchtops in kitchen and laundry
• Walking distance from main bus and train routes
• Walking distance from local shops & cafes
• Easy access to local parks and playgrounds
• Integrated laundry package
• Easy-care outdoor entertainment areas
• Bedroom blinds
• Above code insulation and double glazing
• Selected townhouse and island kitchens
