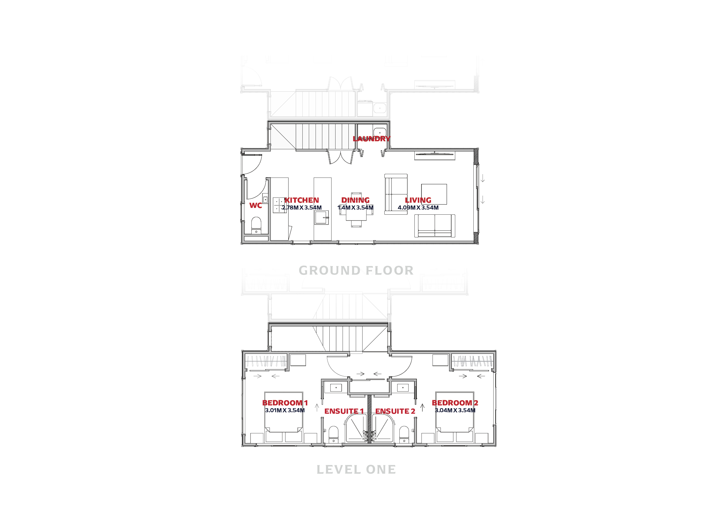
2 Bedrooms
2.5 Bathroom
82 sqm Floor Area
90 sqm Land Area
Info Pack
You must enable JavaScript to submit this form