Plans
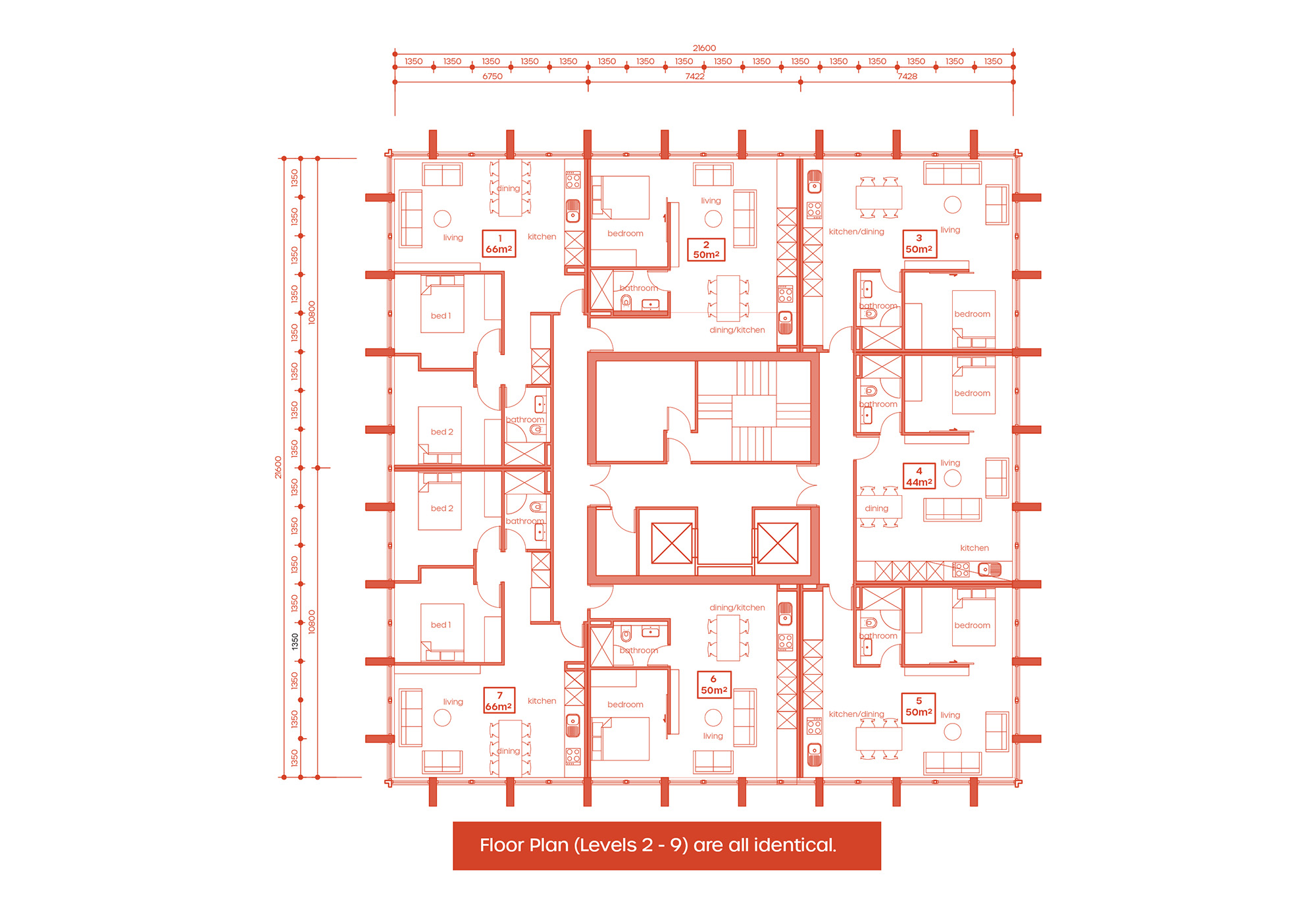
As part of a mixed-use precinct, Avalon Apartments will comprise 56 one and two-bedroom apartments over eight levels, as well as communal recreational areas such as a gym and winter garden.
This is an environment for those who hold cinematic history close to their hearts, are attracted to having a lifestyle choice, or who just want a home that is easy to maintain. There is so much more to enjoy here.
