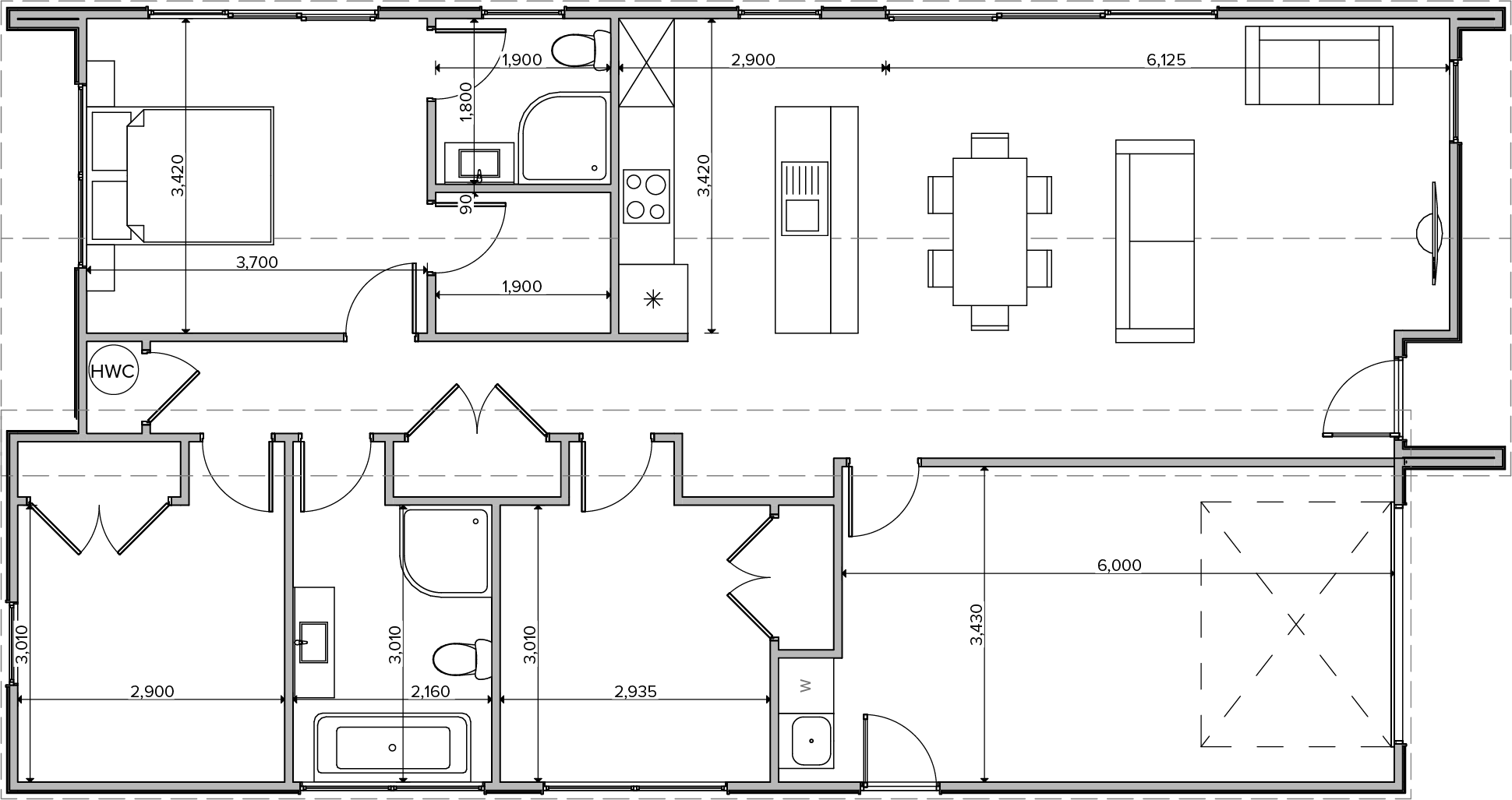
127m2
RoofingCorrugated coloursteel
Cladding 1 Vertical cedar
Cladding 2 Vertical stria
You must enable JavaScript to submit this form