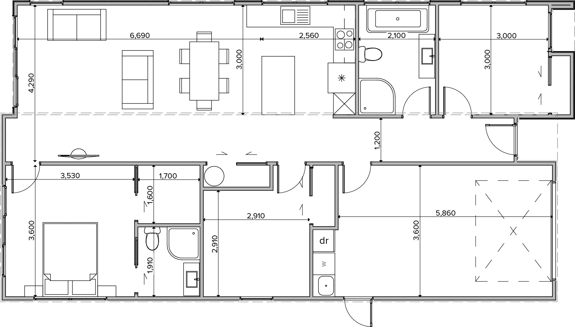
124m2
RoofingCorrugated coloursteel
Cladding 1 Vertical stria
Cladding 2 Linea weatherboard
You must enable JavaScript to submit this form