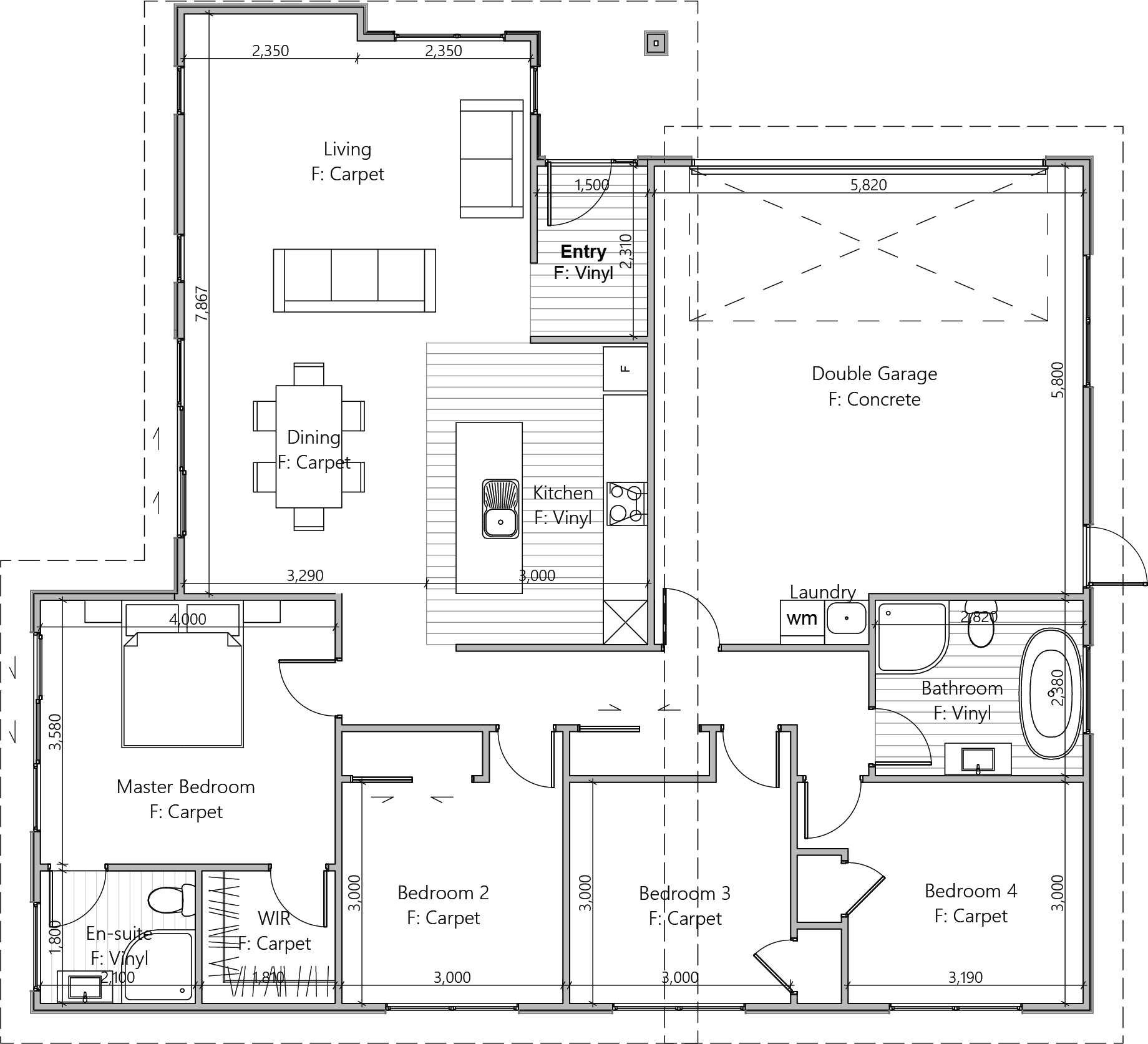
4 Bedrooms
2 Bathrooms
162 sqm Floor Area
321 sqm Land Area
Double Garage
Info Pack
You must enable JavaScript to submit this form