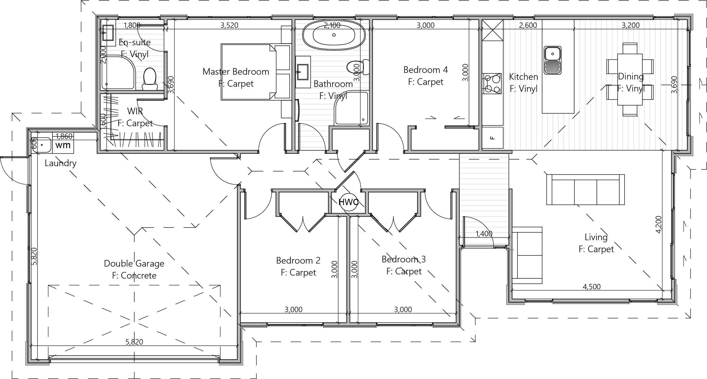
4 Bedrooms
2 Bathrooms
155 sqm Floor Area
326 sqm Land Area
Double Garage
Info Pack
You must enable JavaScript to submit this form