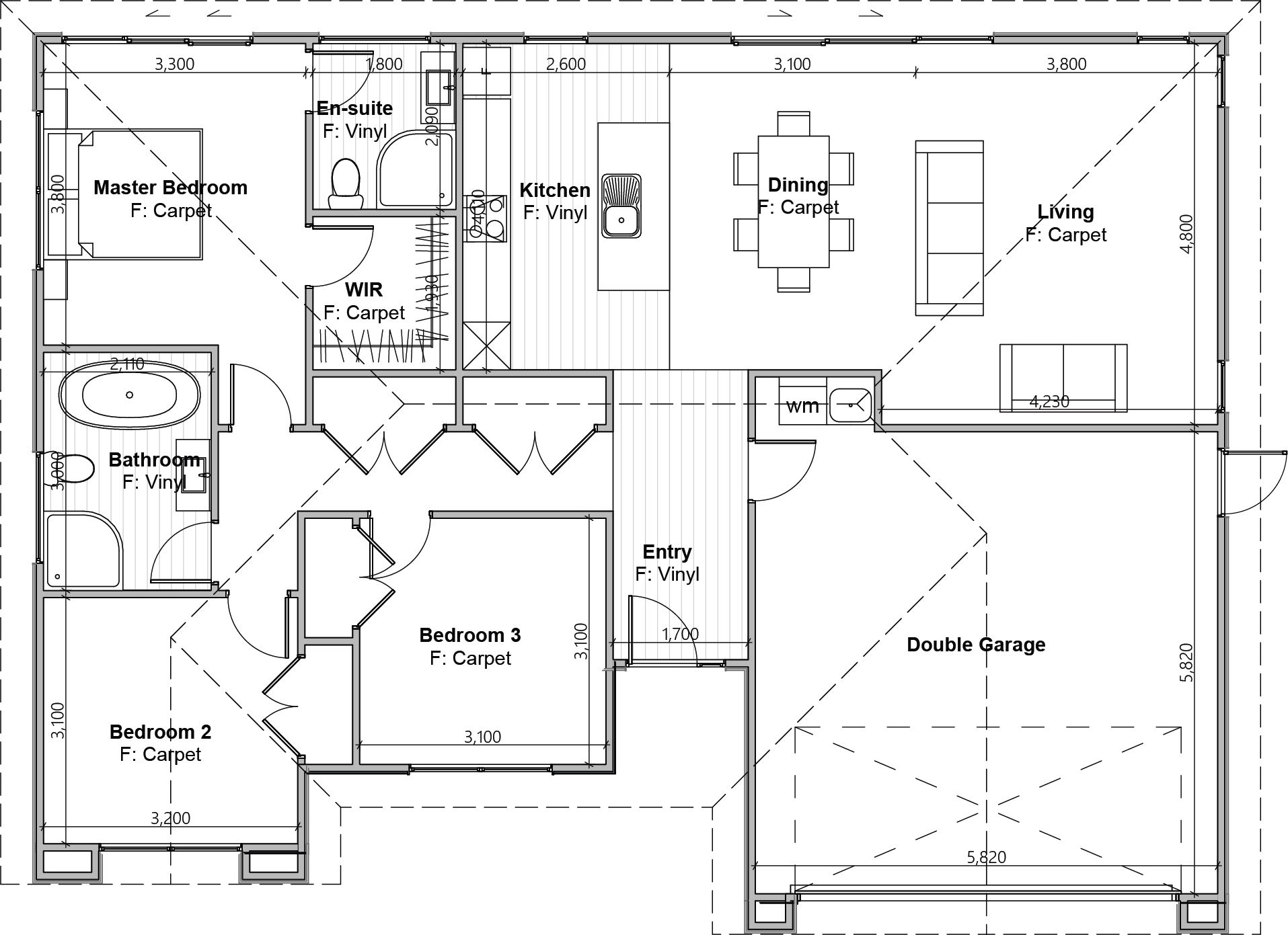
3 Bedrooms
2 Bathrooms
150 sqm Floor Area
334 sqm Land Area
Double Garage
Info Pack
You must enable JavaScript to submit this form