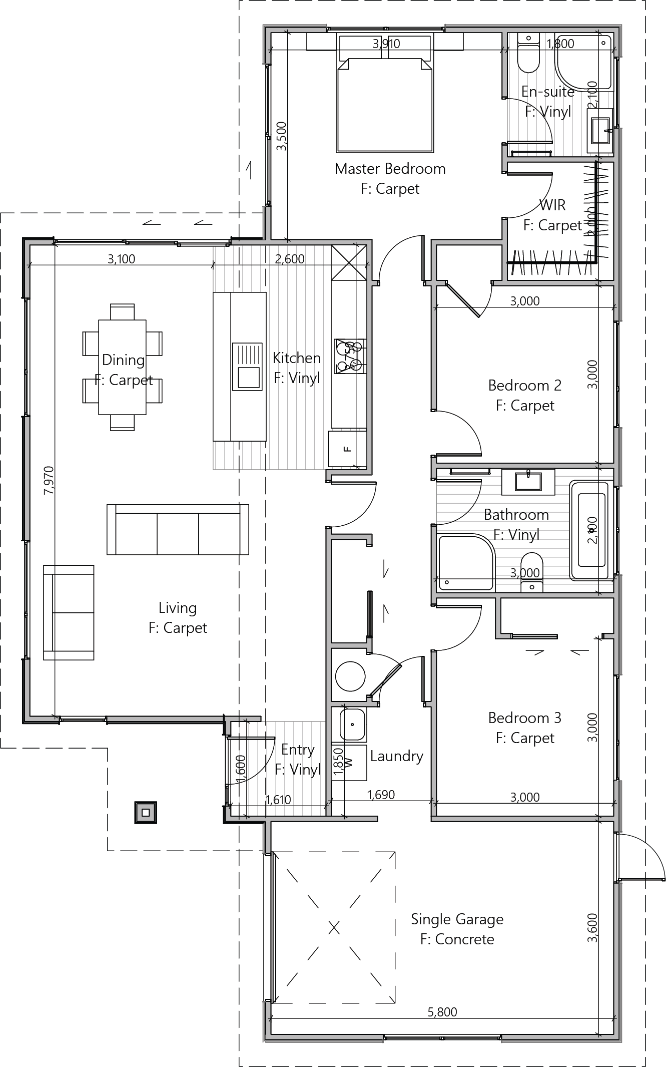
3 Bedrooms
2 Bathrooms
137 sqm Floor Area
350 sqm Land Area
Single Garage
Info Pack
You must enable JavaScript to submit this form