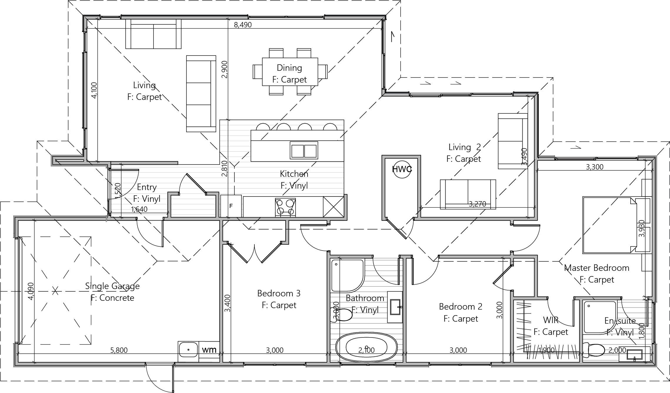
3 Bedrooms
2 Bathrooms
148 sqm Floor Area
340 sqm Land Area
Single Garage
Info Pack
You must enable JavaScript to submit this form